4 Bedroom
3 Bathroom
2,275 ft2
Chalet
Air Conditioned, Heat Pump
Baseboard Heaters, Forced Air, Heat Pump
Waterfront On River
Acreage
Landscaped
$699,900
Welcome to your riverfront escape in the Village of Chipman! This charming Chalet-style home sits on 5.7 acres with an impressive 396 feet of Salmon River frontage, offering peace, privacy, and scenic views year-round. Inside, youll find a bright, eat-in kitchen with plenty of cabinets and a spacious islandperfect for family gatherings. The large living room features patio doors leading to the back deck, ideal for relaxing or entertaining while overlooking the water. A main-level bedroom and a large bath/laundry combo with direct deck access add convenience and comfort. Upstairs, there are two generous bedrooms, primary bedroom featuring a skylight and a private balcony overlooking the riverthe perfect spot for your morning coffee. The partially finished basement includes a fourth bedroom, half bath, and additional space for storage or hobbies. This home features a ducted heating/cooling system, is currently on well and septic, and offers the potential to connect to municipal services. Outside, enjoy the expansive property complete with a 40 x 28 detached garage, providing plenty of room for vehicles, tools, or recreational equipment. Whether youre looking for a year-round residence or a peaceful retreat, this stunning riverfront property combines rustic charm, comfort, and exceptional outdoor living. 3D Tour Avialable (id:27750)
Property Details
|
MLS® Number
|
NB129052 |
|
Property Type
|
Single Family |
|
Equipment Type
|
Water Heater |
|
Features
|
Wheelchair Access, Balcony/deck/patio |
|
Rental Equipment Type
|
Water Heater |
|
View Type
|
River View |
|
Water Front Type
|
Waterfront On River |
Building
|
Bathroom Total
|
3 |
|
Bedrooms Above Ground
|
3 |
|
Bedrooms Below Ground
|
1 |
|
Bedrooms Total
|
4 |
|
Architectural Style
|
Chalet |
|
Constructed Date
|
1972 |
|
Cooling Type
|
Air Conditioned, Heat Pump |
|
Exterior Finish
|
Vinyl |
|
Flooring Type
|
Carpeted, Wood |
|
Foundation Type
|
Concrete |
|
Half Bath Total
|
1 |
|
Heating Fuel
|
Electric |
|
Heating Type
|
Baseboard Heaters, Forced Air, Heat Pump |
|
Stories Total
|
2 |
|
Size Interior
|
2,275 Ft2 |
|
Total Finished Area
|
2275 Sqft |
|
Type
|
House |
|
Utility Water
|
Well |
Parking
Land
|
Access Type
|
Year-round Access, Public Road |
|
Acreage
|
Yes |
|
Landscape Features
|
Landscaped |
|
Sewer
|
Septic System |
|
Size Irregular
|
5.7 |
|
Size Total
|
5.7 Ac |
|
Size Total Text
|
5.7 Ac |
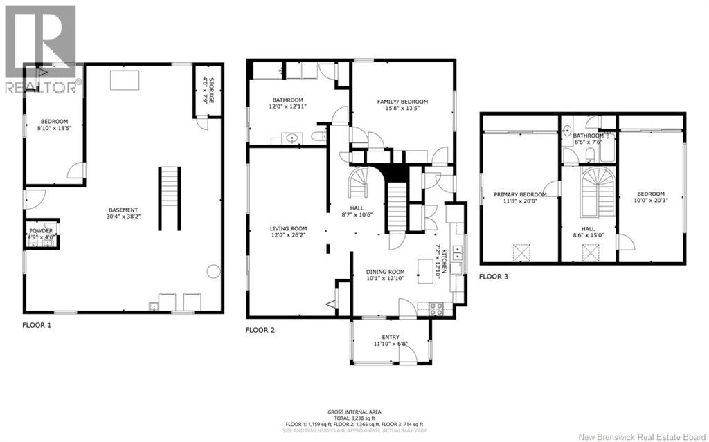
Rooms
| Level |
Type |
Length |
Width |
Dimensions |
|
Second Level |
2pc Bathroom |
|
|
8'6'' x 7'6'' |
|
Second Level |
Bedroom |
|
|
20'3'' x 10' |
|
Second Level |
Bedroom |
|
|
20' x 11'8'' |
|
Basement |
Other |
|
|
4'9'' x 4' |
|
Basement |
Storage |
|
|
4'10'' x 7'9'' |
|
Basement |
Bedroom |
|
|
18'5'' x 8'10'' |
|
Main Level |
2pc Bathroom |
|
|
12'11'' x 12' |
|
Main Level |
Kitchen |
|
|
12'10'' x 7'2'' |
|
Main Level |
Dining Room |
|
|
12'10'' x 10'1'' |
|
Main Level |
Living Room |
|
|
26'2'' x 12' |
|
Main Level |
Bedroom |
|
|
15'8'' x 13'5'' |
https://www.realtor.ca/real-estate/29023961/560-main-street-chipman