2401 Nb-132 Route Greater Lakeburn, New Brunswick E1H 4Z7

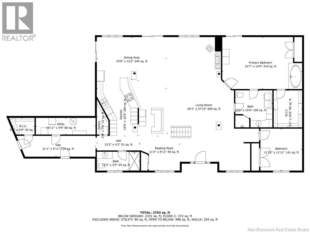
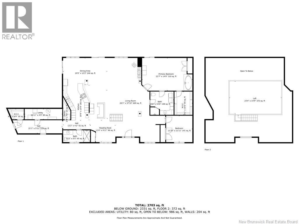
6,600 ft2
Air Conditioned In Floor Heating, Stove Acreage

$1,199,900

Attention Tradespeople, Mechanics, Business Owners and Entrepreneurs, RA Zoned Property on 6 acres and 4 car lifts. This meticulously maintained property offers a rare blend of executive design and commercial versatility. With proper zoning already in place, its an ideal setup for entrepreneurs, tradespeople, or anyone looking to operate a business from home. The site features a massive 40' x 70' garage with 12-foot walls, providing ample space for operations, storage, or customization. An additional 35' x 40' attached garage at the rear further expands the possibilities, making it great opportunity to combine your business and home. The residence is equally impressive, measuring 40' x 60' and built with 12-foot ICF walls for superior insulation and durability. Inside, youll find two spacious bedrooms and two full bathrooms, complemented by a professionally designed mezzanine that serves as a stylish game room or flexible bonus space. The open-concept layout is thoughtfully crafted to accommodate endless possibilities, whether you're envisioning a modern family hub or a dynamic live-work environment. Attention to detail is evident throughout, With in-floor heating, mini-splits and pellet stove to ensure year-round comfort, to the robust 400 amp electrical entrance that supports both residential and commercial needs. This property is a standout opportunity combining high-end design, impeccable upkeep, and serious business potential in a prime location. (id:27750)

Property Details

MLS® Number NB126993
Property Type Other
Structure Shed

Building

Constructed Date 2008
Cooling Type Air Conditioned
Exterior Finish Stucco
Heating Fuel Pellet
Heating Type In Floor Heating, Stove
Size Interior 6,600 Ft2
Total Finished Area 6600 Sqft

Land

Access Type Year-round Access, Public Road
Acreage Yes
Size Irregular 6
Size Total 6 Ac
Size Total Text 6 Ac

https://www.realtor.ca/real-estate/28887562/2401-nb-132-route-greater-lakeburn

Contact Us

Contact us for more information


Generating Captcha

Compare listings

Compare